TERLIZZI, Via Vecchia Sovereto

ID: 331 | 250 Mq | 4 Vani | Piano: Più livelli | Da ristrutturare | Box | In Vendita: 435.000,00

 

VILLA MONOFAMILIARE CON AMPIO LOTTO – POSIZIONE STRATEGICA A DUE PASSI DALLA CITTA’

IN CONTESTO RESIDENZIALE IN FORTE ESPANSIONE E IN POSIZIONE PRIVILEGIATA, PROPONIAMO IN VENDITA VILLA MONOFAMILIARE IN CORSO DI COSTRUZIONE, ATTUALMENTE ALLO STATO RUSTICO, IDEALE PER CHI DESIDERA PERSONALIZZARE GLI SPAZI E REALIZZARE UNA SOLUZIONE ESCLUSIVA A POCHI MINUTI DAL CENTRO URBANO.

L’IMMOBILE, UBICATO IN VIA VECCHIA SOVERETO, RICADE NEL COMPARTO C5/B1 – AREE DI ESPANSIONE RESIDENZIALE – E PRECISAMENTE NEL LOTTO N. 16 DI CIRCA 1100 MQ, CARATTERIZZATO DA AMPIA PERTINENZA ESTERNA CHE GARANTISCE PRIVACY, VIVIBILITÀ E MOLTEPLICI POSSIBILITÀ DI VALORIZZAZIONE.

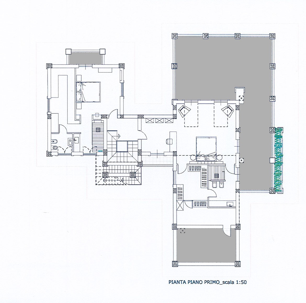
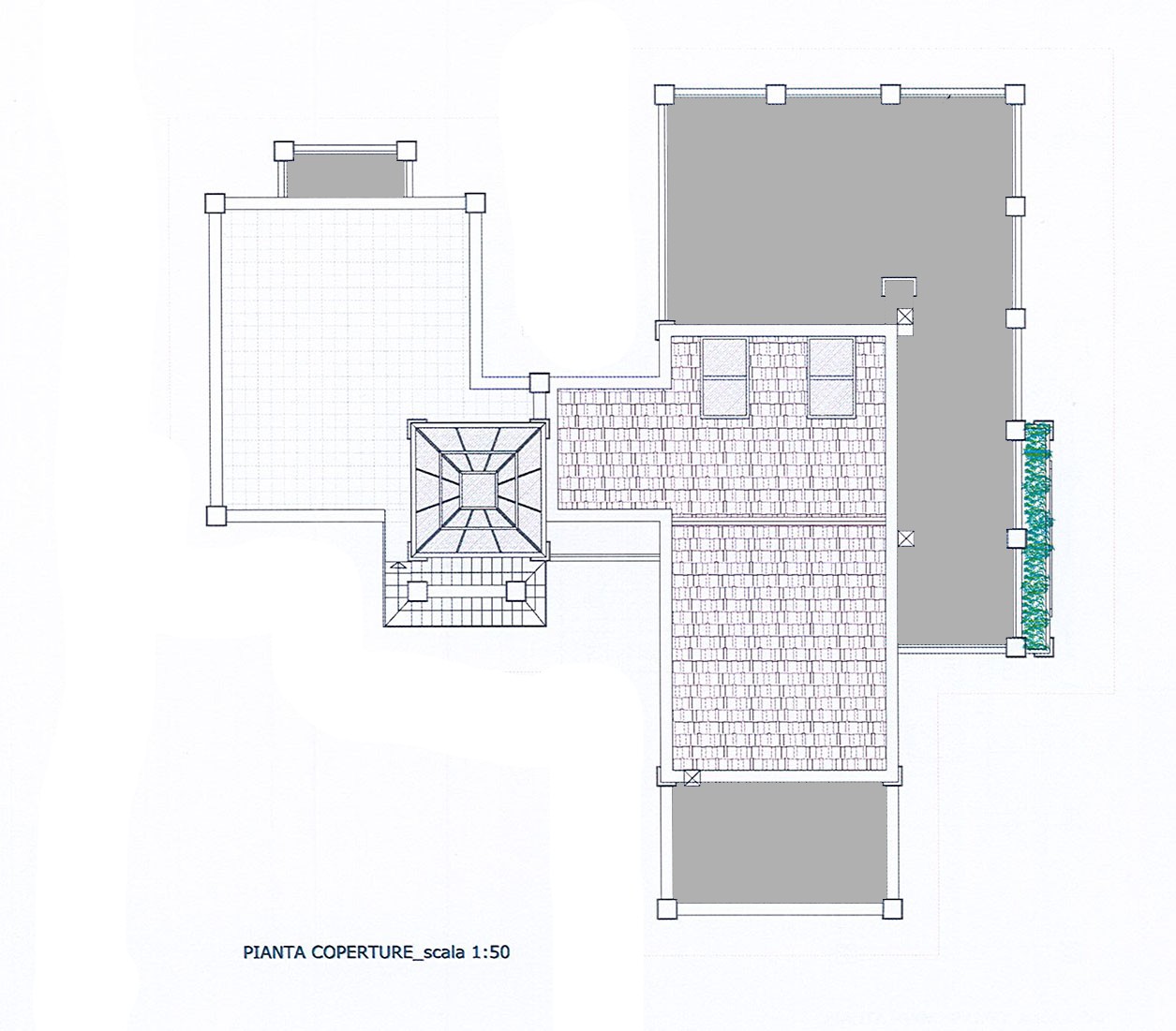
LA PROPRIETÀ SI DISTINGUE PER LA SUA VERSATILITÀ PROGETTUALE ED È COMPOSTA DA TRE UNITÀ IMMOBILIARI:
• UNA UNITÀ RESIDENZIALE SVILUPPATA INTERAMENTE AL PIANO TERRA, PENSATA PER OFFRIRE COMFORT ABITATIVO E FUNZIONALITÀ DEGLI AMBIENTI;
• DUE UNITÀ DIREZIONALI AD USO UFFICIO, DI CUI UNA AL PIANO TERRA E UNA AL PRIMO PIANO, SOLUZIONE IDEALE PER PROFESSIONISTI O PER CHI DESIDERA INTEGRARE ABITAZIONE E ATTIVITÀ LAVORATIVA;
• PORZIONE ADIACENTE DESTINATA A SOTTOTETTO, PERTINENZIALE ALL’ABITAZIONE, PERFETTA COME SPAZIO ACCESSORIO O AREA MULTIFUNZIONALE.

COMPLETA LA PROPRIETÀ UN AMPIO BOX AUTO GIÀ FORNITO DI ALLACCIO ALLA RETE PUBBLICA DELL’ACQUA, ELEMENTO CHE AGGIUNGE ULTERIORE VALORE E PRATICITÀ.

LA VILLA RAPPRESENTA UN’OPPORTUNITÀ UNICA PER CHI CERCA INDIPENDENZA, METRATURE GENEROSE E UNA POSIZIONE STRATEGICA VICINISSIMA ALLA CITTÀ, CON IL VANTAGGIO DI POTER DEFINIRE FINITURE E DISTRIBUZIONE INTERNA SECONDO LE PROPRIE ESIGENZE.

SOLUZIONE IDEALE SIA PER USO RESIDENZIALE ESCLUSIVO SIA PER INVESTIMENTO CON SVILUPPO MISTO ABITATIVO/DIREZIONALE.

 

 

Dettagli immobile

 

Dati generali
Categoria
Villa
Tipologia
Indipendente
Superficie Commerciale
250
Metri Quadri Coperti
250
Piano
Più livelli
Vani
4
Stato immobile
Condizioni interne
Da ristrutturare
Box Auto
SI

 

Impianti

 

Descrizione interna

 

Dettagli Terreno
Tipo coltivazione
Terreno

 

Gallery

 

 

 

 

 

 

RICHIEDI INFORMAZIONI

 

Sei interessato a visionare questo immobile, o desideri semplicemente ricevere maggiori informazioni? Compila questo form e verrai contattato da un Consulente Immobiliare professionista entro poche ore.

 

© 2026 Vitagliano Immobiliare | Privacy Policy | Cookie Policy

Ricerca per ID